Urz膮dzenia czyszcz膮ce ta艣m臋
Zgarniacze p艂ugowe do wew. strony
ta艣my
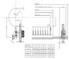
Zgarniacz pod ta艣mowy/pod bebnowy SA-Standard i SA-EXTREME
Zgarniacz pod ta艣mowy (pod b臋bnowy) typu SA (Standard) i SA -EXTREME z listw膮 zgarniaj膮c膮 z segment贸w polimerowych stosuje si臋 do oczyszczania ta艣my z resztek materia艂u transportowanego za b臋bnem nap臋dowym, zalecany szczeg贸lnie do ta艣m zu偶ytych i 艂膮czonych zamkami metalowymi (zastosowanie uniwersalne).
Charakterystyka:
-
Polimerowe segmenty skrobi膮ce posiadaj膮 wewn臋trzn膮 profilowan膮 komor臋 powietrzn膮 zapewniaj膮c膮 spr臋偶yste odkszta艂cenie si臋 skrobak贸w w kierunku biegu ta艣my i nacisk ostrzy zgarniacza do ta艣my;
-
Wysoka skuteczno艣膰 oczyszczania ta艣my;
-
Listwa zgarniaj膮ca wykonana z segment贸w dopasowuj膮cych si臋 samoczynnie do kszta艂tu ta艣my;
-
Bardzo bezpieczna praca przy ta艣mach zu偶ytych i ta艣mach 艂膮czonych zamkami metalowymi;
-
艁atwa wymiana segment贸w skrobaka w uchwycie szynowym belki no艣nej zgarniacza;
-
艁atwy monta偶 zgarniacza w trudno dost臋pnych miejscach;
-
D艂uga 偶ywotno艣膰 listwy skrobaka wykonanej z polimeru;
-
Uk艂ad pantografowy napinacza zapewnia osiowy docisk ostrza do ta艣my;
-
Zgarniacz nie wymaga obs艂ugi podczas eksploatacji;
-
Zabezpieczenia antykorozyjne – cynkowanie ogniowe;
-
Urz膮dzenia spe艂nia wymogi bezpiecze艅stwa okre艣lone w Dyrektywie
ATEX 137 i ATEX 95;
Atesty:
-
Atest bezpiecze艅stwa nr GM-142/02 dla polimeru PU wydany przez WUG
w Katowicach; -
Zg艂oszenie patentowe RP ;





